
Фильтр ФГГ-400
цена от
849 300 руб.
- Исполнение – горизонтальное
- Номинальный диаметр DN – 400 мм
- Номинальное давление PN – до 10,0 МПа
- Тонкость фильтрации – 4, 8, 12, 16 или 25 мм
- Максимальная производительность – 800 м³/ч
- Материал корпуса – 09Г2С / 12Х18Н10Т / другая сталь
- Блочное исполнение – опционально
- Теплоизоляция – опционально
- Комплектация КИП, ЗРА – опционально
- Резервные фильтрующие элементы – опционально
Горизонтальный фильтр грязеуловитель ФГГ-400 (DN 400, 800 м³/ч) разработан для эксплуатации на магистральных нефтепроводах и крупных НПС. Модель обеспечивает очистку нефти от песка, парафиновых отложений и окалины, предотвращая аварии на ответственных участках. Внутренний диаметр корпуса 700 мм и длина позволяют обрабатывать большие объемы без потери эффективности.
Примеры применения
- Магистральные трубопроводы «Роснефть»: Фильтрация нефти перед подачей в магистральные насосы.
- Портовые терминалы: Подготовка сырья к экспорту, удаление морского песка и солей.
- Нефтехимические кластеры: Защита каталитических систем от механических примесей.
Особенности ФГГ-400
- Система дренажа: Ускоренное удаление шлама даже при высокой вязкости среды.
- Сейсмостойкое исполнение: Возможность эксплуатации в регионах с сейсмичностью до 9 баллов.
- Интеграция с системами автоматизации для удаленного контроля засоренности.
- Энергоэффективность: Снижение гидравлического сопротивления за счет оптимизированной геометрии патрубков.
Технические параметры фильтра для нефти ФГГ-400
| Обозначение | Фильтр ФГГ-400 |
| Производительность, м³/ч | 800 |
| Условное давление, Pу, МПа | 1,6; 2,5; 4,0; 6,3; 8,0 или 10,0 |
| Температура нефти, ℃ | От -15 до +80 |
| Температура нефтепродуктов, ℃ | От -20 до +80 |
| Степень фильтрации, мм | 4, 8, 12, 16 или 25 |
| DN, мм | 400 |
| Dp, мм (внутренний диаметр корпуса) | 700 |
| L, мм (расстояние от фланца корпуса до кромки осевого патрубка) | 4400 |
| L1, мм (расстояние от оси бокового патрубка) | 1800 |
| H, мм (расстояние от оси ФГГ до опоры) | 1050 |
| L2, мм (расстояние между опорами) | 2300 |
| L3, мм (расстояние до опоры) | 1200 |
| Обозначение | Блочный фильтр ФГГ-400 |
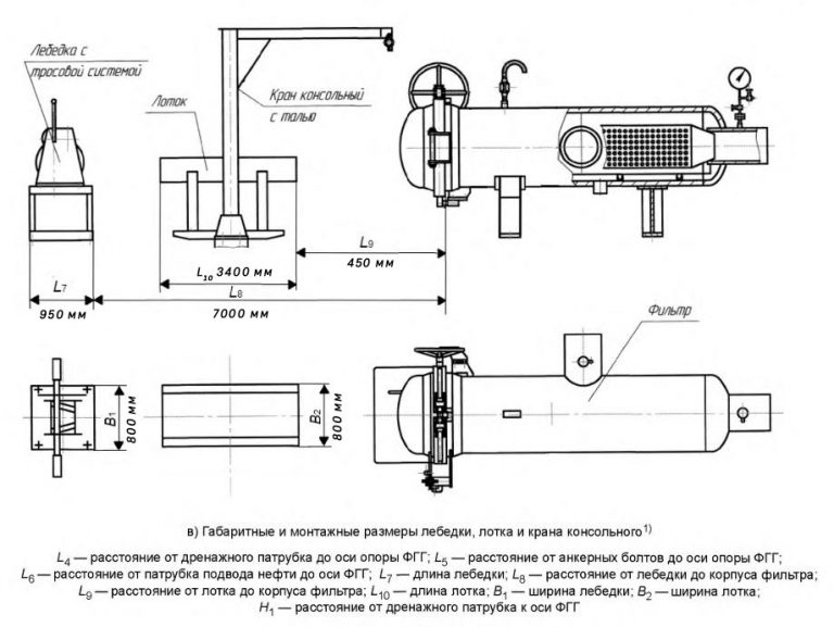
| L7, мм (длина лебедки) | 950 |
| L8, мм (расстояние от лебедки до корпуса фильтра) | 7000 |
| L9, мм (расстояние от лотка до корпуса фильтра) | 450 |
| L10, мм (длина лотка) | 3400 |
| В2, мм (ширина лотка) | 800 |
| В1, мм (ширина лебедки) | 800 |
| L5, мм (расстояние от анкерных болтов до оси опоры ФГГ) | 0 |
| L6, мм (расстояние от патрубка подвода нефти до оси ФГГ) | 780 |
| L4, мм (расстояние от дренажного патрубка к оси опоры) | 1300 |
| Н1, мм (расстояние от дренажного патрубка до оси ФГГ) | 530 |
| Радиус вылета быстроразъемного концевого затвора, мм | 1330 |
| Количество штурвалов быстроразъемного концевого затвора, шт | 1 |
Чертеж фильтра ФГГ-400
Чертеж блочного фильтра ФГГ-400
Расшифровка условного обозначения
Например, фильтр грязеуловитель горизонтальный ФГГ номинальным диаметром DN 400 на номинальное давление PN 2,5 МПа, блочного исполнения, с осевым отводом нефти или нефтепродуктов, с правым расположением патрубка подвода нефти или нефтепродуктов, в сейсмостойком исполнении С по MSK — 64 [10], без теплоизоляции, вид климатического исполнения УХЛ1 по ГОСТ 15150 будет обозначаться следующим образом: ФГГ-400-2,5-Б-0-П-С-УХЛ1.
Преимущества ООО "УЗСК"
- Использование лазерной резки при производстве.
- Разработка паспорта оборудования с учетом требований Ростехнадзора.
- Гарантия от 12 месяцев на корпус при соблюдении условий эксплуатации.
Заполните форму заказа





